Gallery
The Anniston
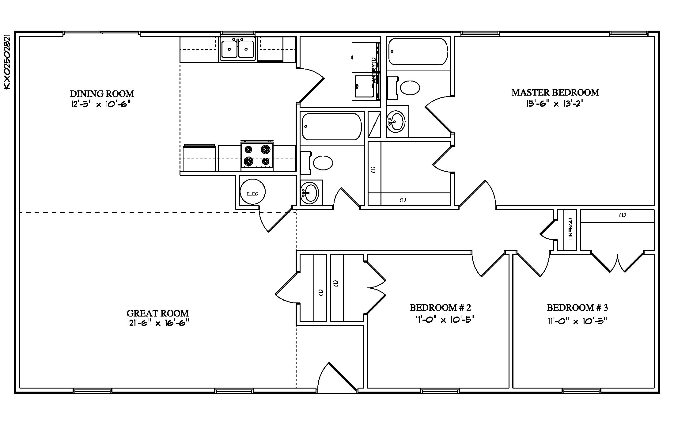
The Anniston is a streamlined, porch-friendly plan that balances everyday function with an efficient footprint. At 1,400 sq ft, it offers 3 bedrooms and 2 baths with a first-floor primary suite. Popular upgrades may include a farmhouse-style sink, an electric or gas fireplace, and a tray ceiling in the primary bedroom. Multiple elevation and porch configurations are available. Maximum footprint: 50 W x 28 D.


