





Gallery
The Bancroft
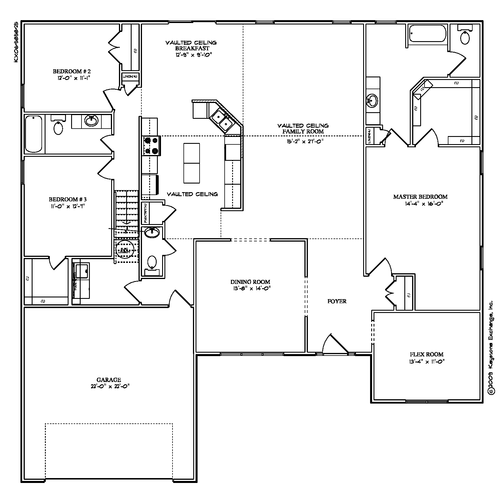
The Bancroft is a flexible plan with strong separation between public and private spaces and room to personalize. At 2,691 sq ft, it features 3 bedrooms, 2.5 baths, a first-floor primary suite, and a 2-car garage. Popular upgrades may include double wall ovens with a cooktop, a breakfast bar, and a double-bowl vanity in the hall bath. Multiple elevation and porch configurations are available.
Love this plan?
Get in touch with one of our representatives. We can help you customize it to your liking and then get your build on our calendar!
Love this plan?
Get in touch with one of our representatives. We can help you customize it to your liking and then get your build on our calendar!
Love this plan?
Get in touch with one of our representatives. We can help you customize it to your liking and then get your build on our calendar!