Gallery
The Baylor
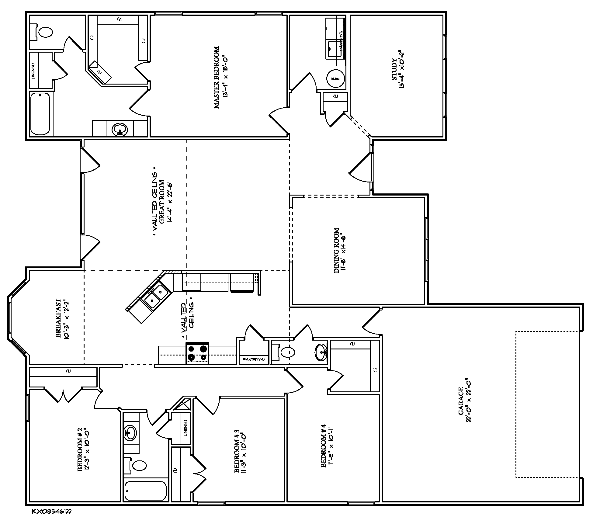
The Baylor is designed to feel open and livable without sacrificing bedroom count or storage. At 2,187 sq ft, it offers 4 bedrooms, 2.5 baths, a first-floor primary suite, and a 2-car garage. Popular upgrades may include a farmhouse-style sink, a gas fireplace, a tray ceiling in the primary bedroom, and an oversized shower in the primary bath. Multiple elevation and porch configurations are available.


