Gallery
The Birkshire
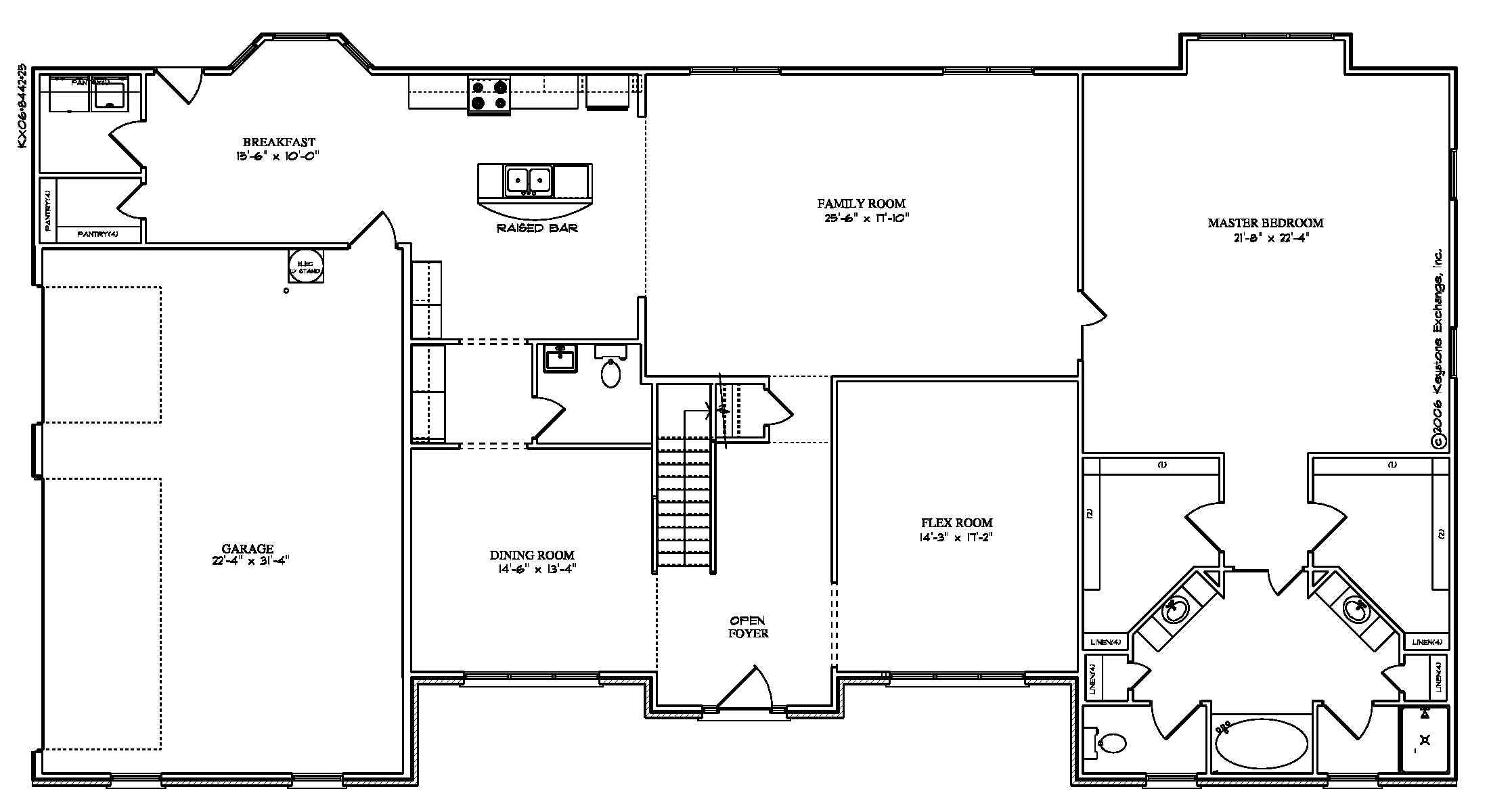
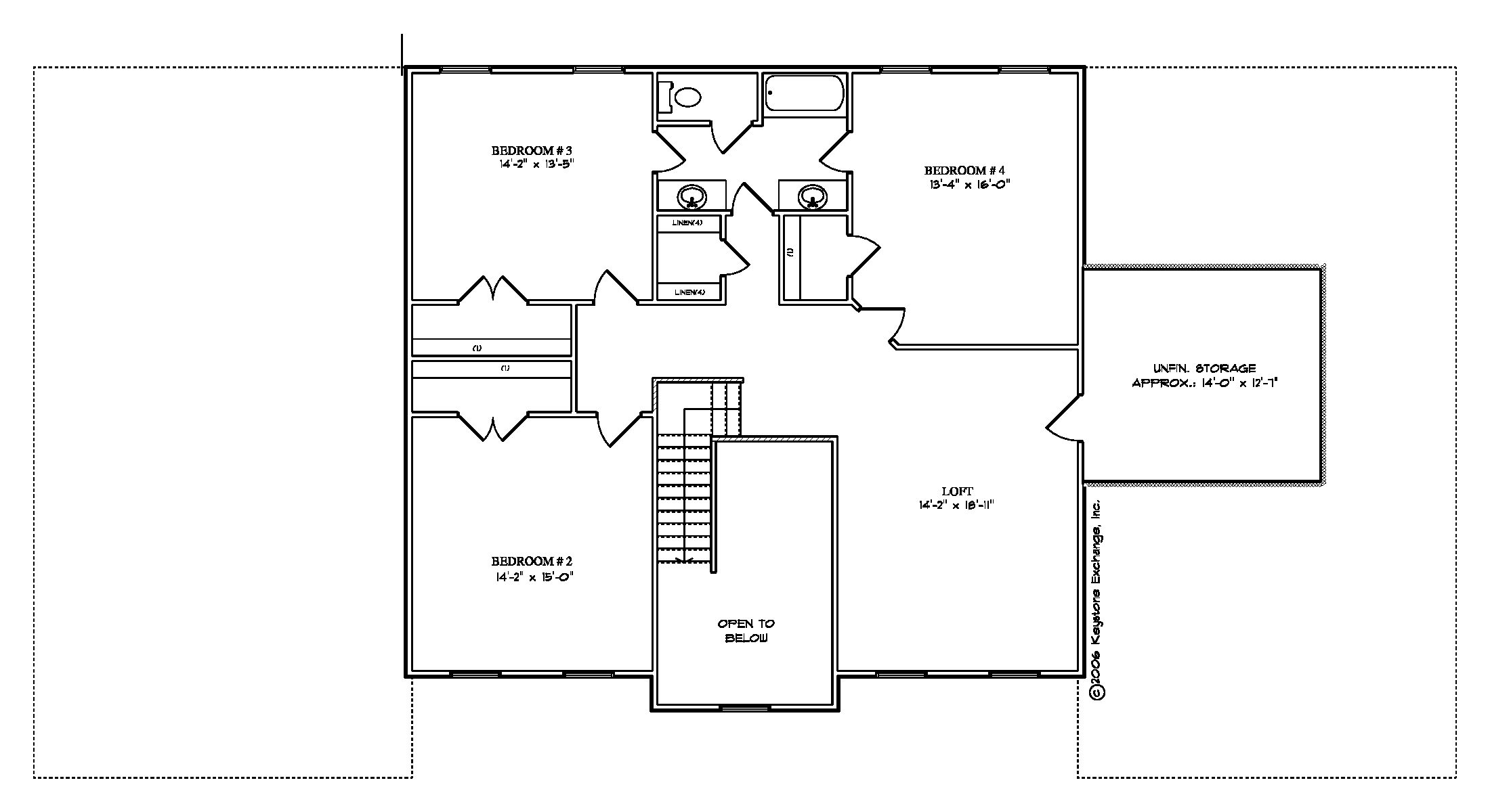
The Birkshire is built for households that need extra room for gathering, storage, and future flexibility. At 3,975 sq ft, it features 4 bedrooms, 2.5 baths, a first-floor primary suite, and a 3-car garage. Popular upgrades may include a gas fireplace, a tray ceiling in the primary bedroom, a bonus room, and an optional third bath. Multiple elevation configurations are available.


