Gallery
The Braxton IV
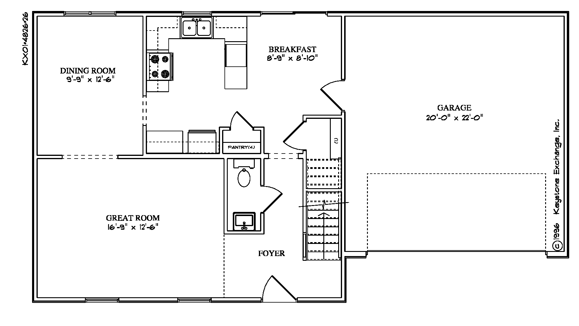
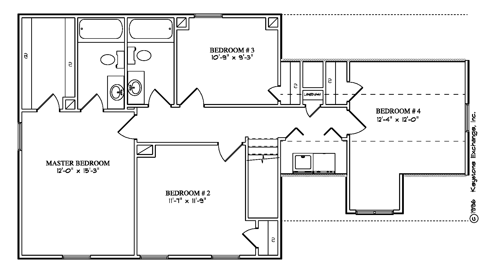
The Braxton IV is a smart, comfortable plan that prioritizes livability and efficient circulation. At 1,731 sq ft, it offers 4 bedrooms, 2.5 baths, and a 2-car garage. Popular upgrades may include an electric or gas fireplace, a tray ceiling in the primary bedroom, and a more open kitchen configuration. Multiple elevation and porch configurations are available.


