Gallery
The Buckingham
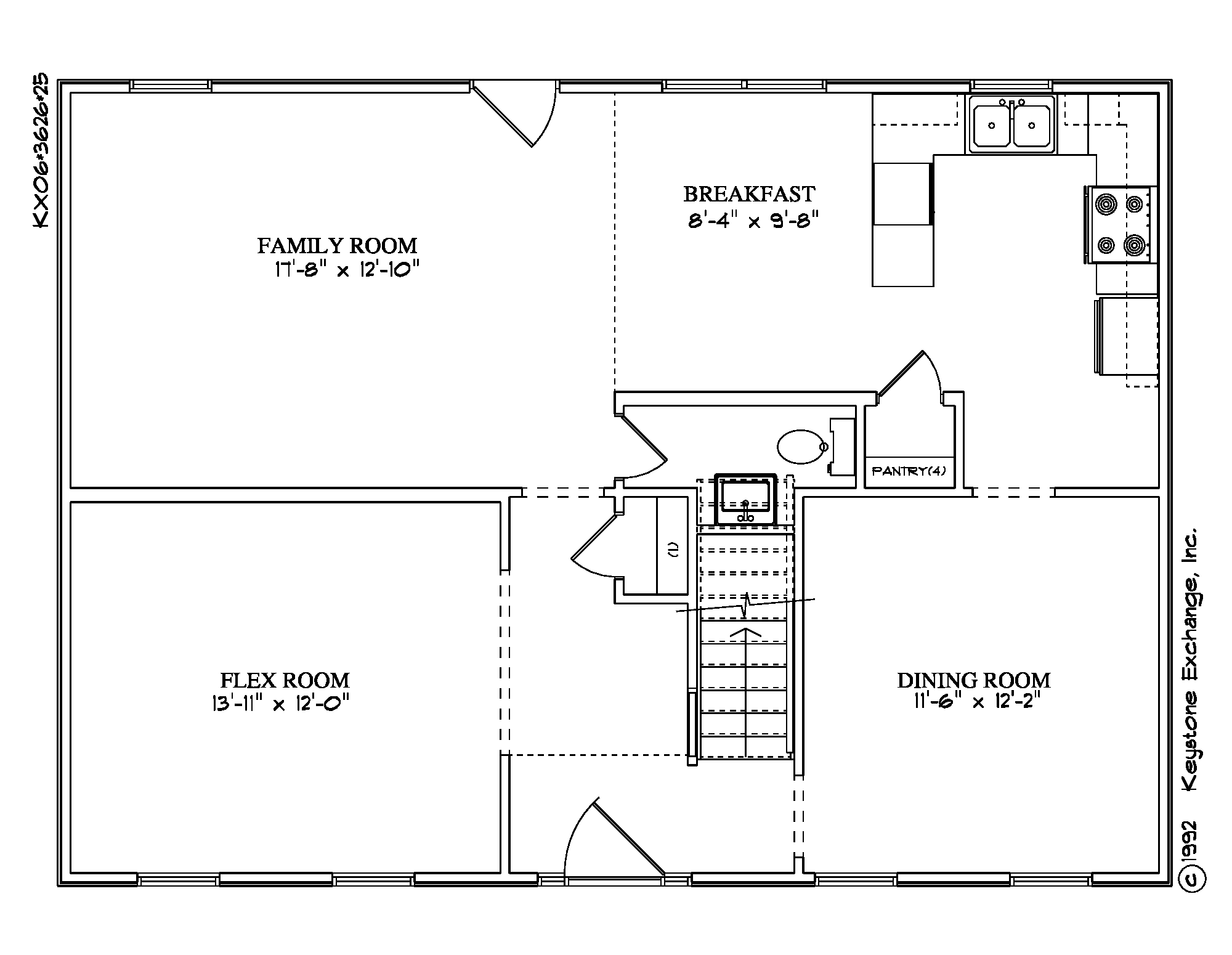
This beautifully designed Buckingham model offers 1,872 square feet of thoughtfully planned living space, featuring 3 bedrooms and 2.5 bathrooms in a classic two-story layout. The first floor is designed for both everyday living and entertaining, with a spacious family room, a dedicated dining room, a flexible bonus room ideal for a home office or sitting area, and an open kitchen with a breakfast area that flows naturally through the home. Upstairs, the private owner’s suite includes a generous bedroom layout with an en-suite bath, complemented by two additional well-sized bedrooms and a full hall bathroom. With its efficient footprint, optional upgrades such as a fireplace, tray ceiling in the primary bedroom, farmhouse kitchen sink, and multiple elevation styles, including porch options, this home combines timeless curb appeal with modern functionality, making it ideal for families seeking comfort, style, and flexibility


