Gallery
The Callaway
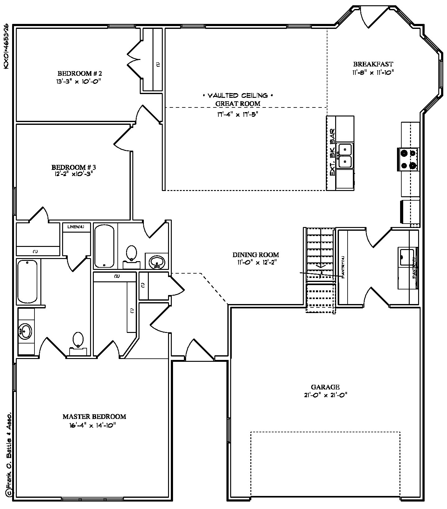
The Callaway delivers a balanced layout with generous living areas and thoughtful bedroom placement. At 1,935 sq ft, it offers 3 bedrooms, 2 baths, a first-floor primary suite, and a 2-car garage. Popular upgrades may include a gas fireplace, a tray ceiling in the primary bedroom, an oversized shower in the primary bath, and a breakfast bar. Multiple elevation and porch configurations are available.


