Gallery
The Colebrooke
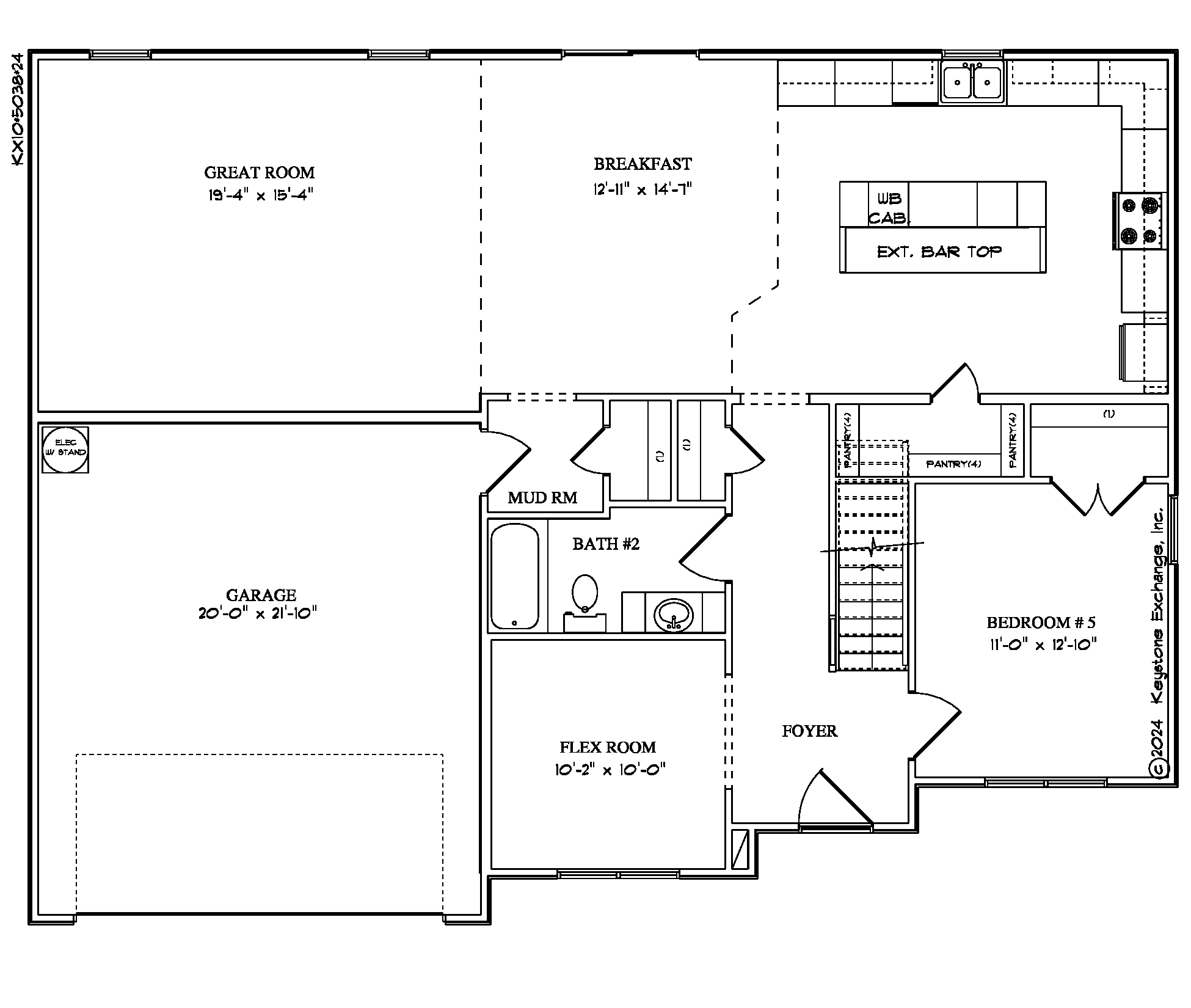
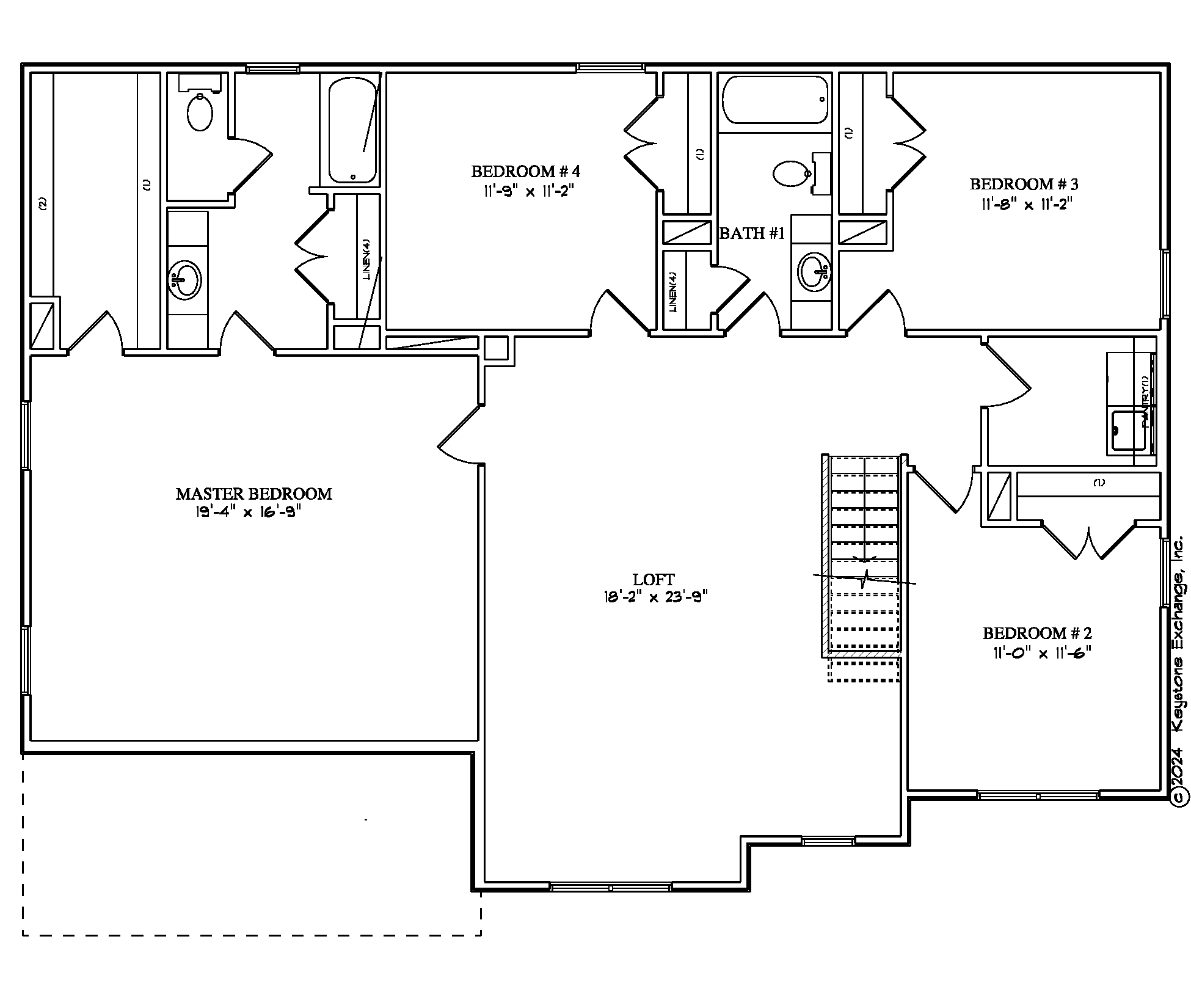
The Colebrooke is a family-ready plan that supports multi-generational needs or guests with additional bedrooms. At 2,974 sq ft, it offers 5 bedrooms, 3 baths, and a 2-car garage. Popular upgrades may include a gas fireplace, a flex room, a loft, and a breakfast bar. Multiple elevation and porch configurations are available.


