Gallery
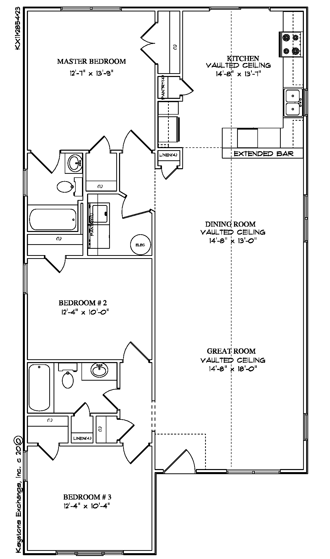
The Conway
The Conway is a compact, efficient plan that prioritizes straightforward living with an easy-to-furnish layout. At 1,392 sq ft, it includes 3 bedrooms and 2 baths with a first-floor primary suite. Popular upgrades may include a gas fireplace, a tray ceiling in the primary bedroom, a breakfast bar, and an oversized shower in the primary bath. Multiple elevation and porch configurations are available. Maximum footprint: 28 W x 54 D.

