Gallery
The Lakeview
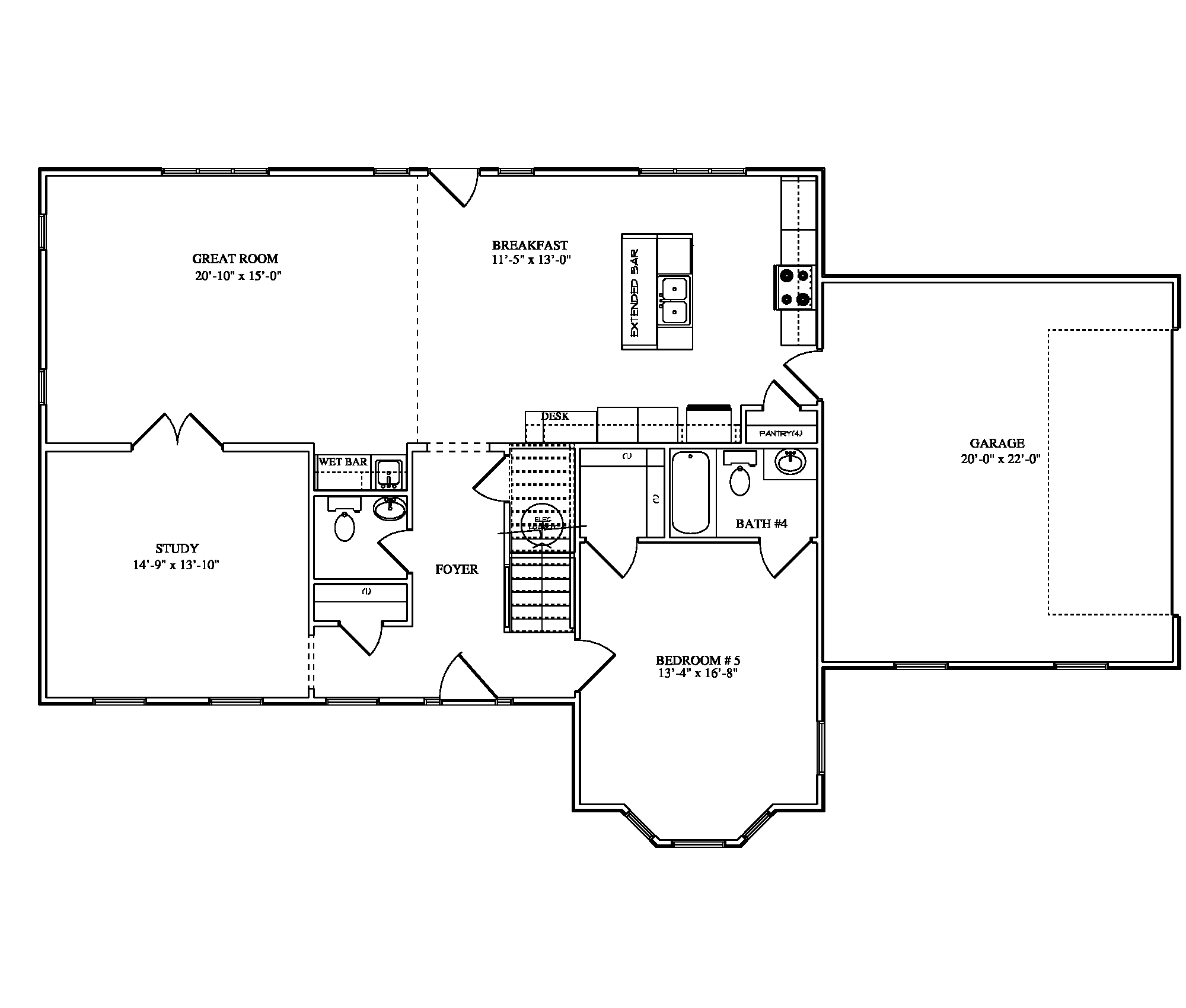
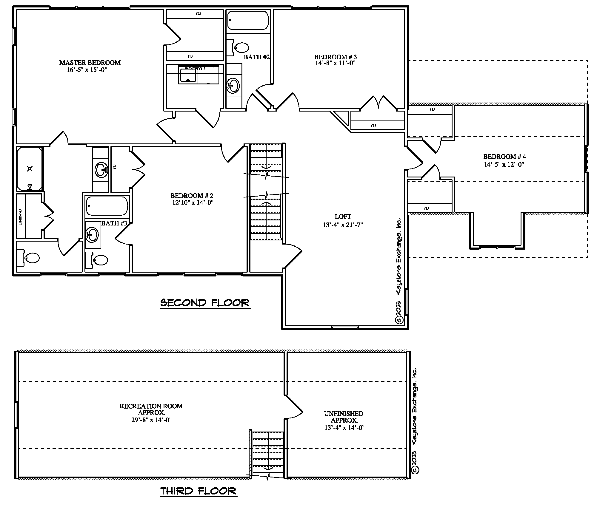
The Lakeview is a spacious and thoughtfully designed home offering 3,537 square feet with 5 bedrooms, 4.5 baths, and a 2-car garage. The main level features an open great room, kitchen with breakfast area, a private study, and a first-floor bedroom with full bath, ideal for guests or multi-generational living. Upstairs, the primary suite is joined by additional bedrooms and a loft, while a third-floor recreation space adds flexibility for entertaining or relaxation. With its generous layout and modern design options, The Lakeview delivers comfort, functionality, and room to grow.


