Gallery
The Parker
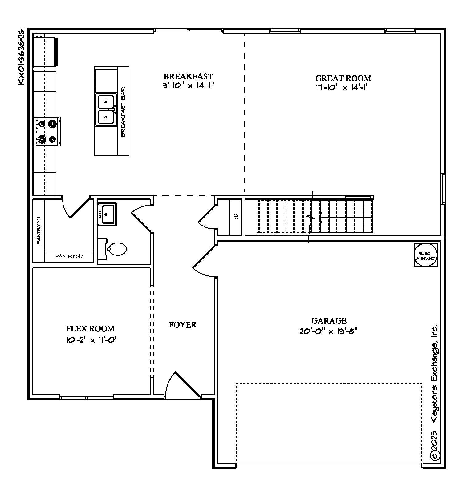
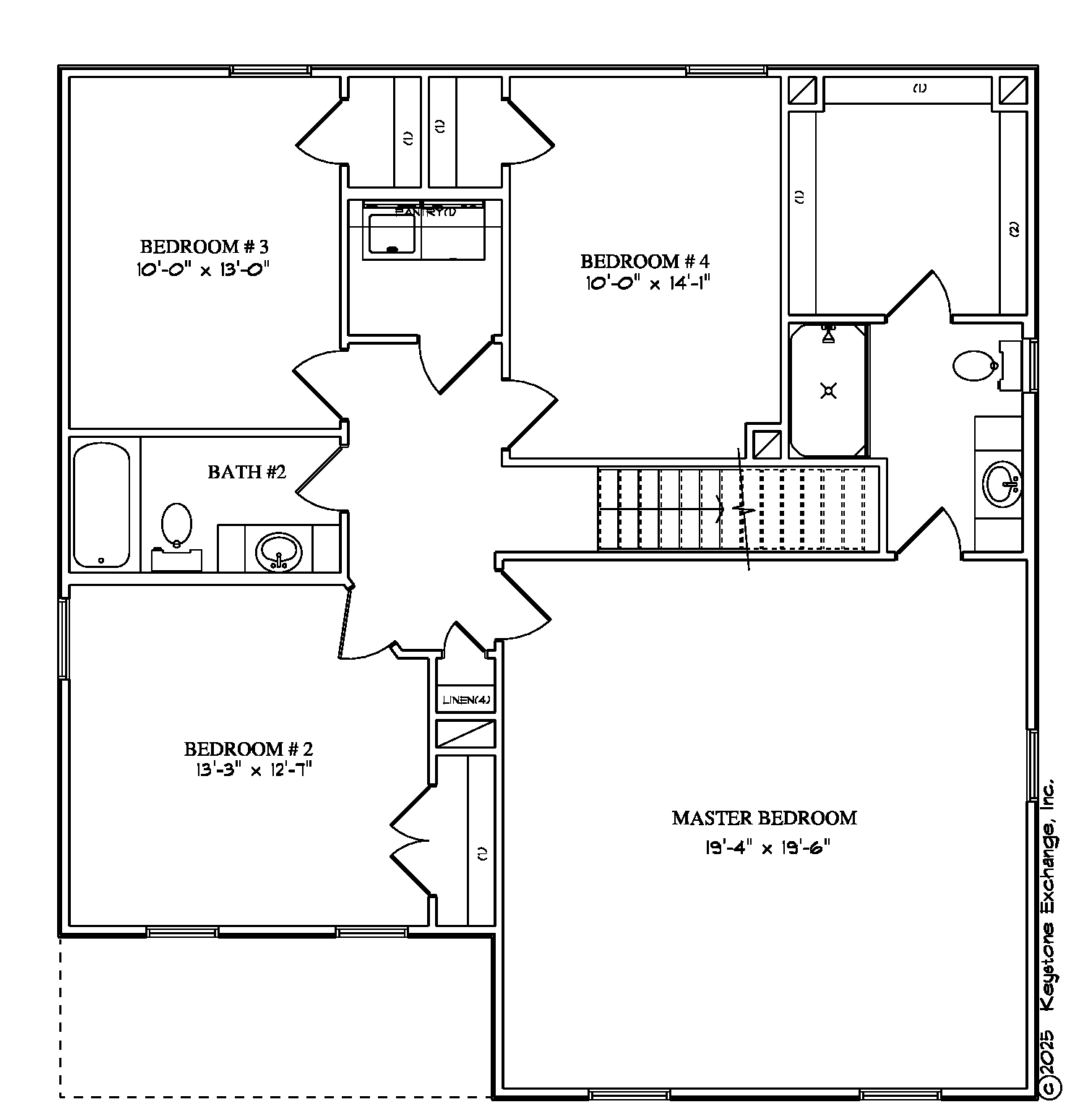
The Parker is a thoughtfully designed two-story home offering 2,155 square feet with 4 bedrooms, 2.5 baths, and a 2-car garage. The open main level connects the great room, kitchen, and breakfast area, with a flexible front room ideal for an office or study. Upstairs, the spacious primary suite and three additional bedrooms provide comfort and privacy. With multiple elevation styles and customizable options, The Parker combines practicality, flexibility, and timeless appeal.


