Gallery
The Sylvia
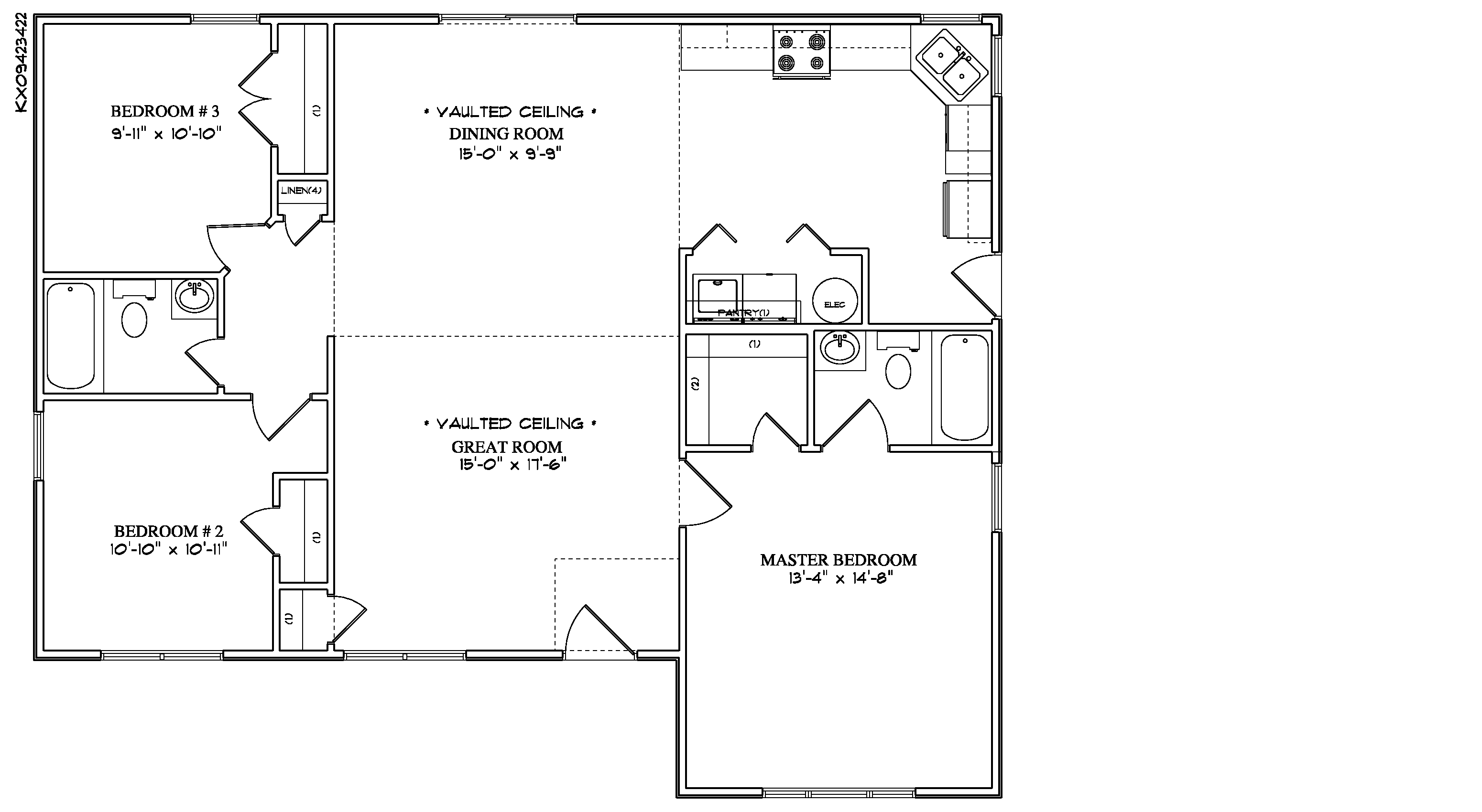
The Sylvia is a compact and efficient single-story home offering 1,260 square feet with 3 bedrooms and 2 baths. Designed with the primary suite on the main level, this plan features an open great room and dining area with optional vaulted ceilings for a bright, airy feel. With flexible exterior elevations and options such as a porch, fireplace, and attached garage, The Sylvia is ideal for homeowners seeking comfort, simplicity, and smart use of space.


