Gallery
The Virginia
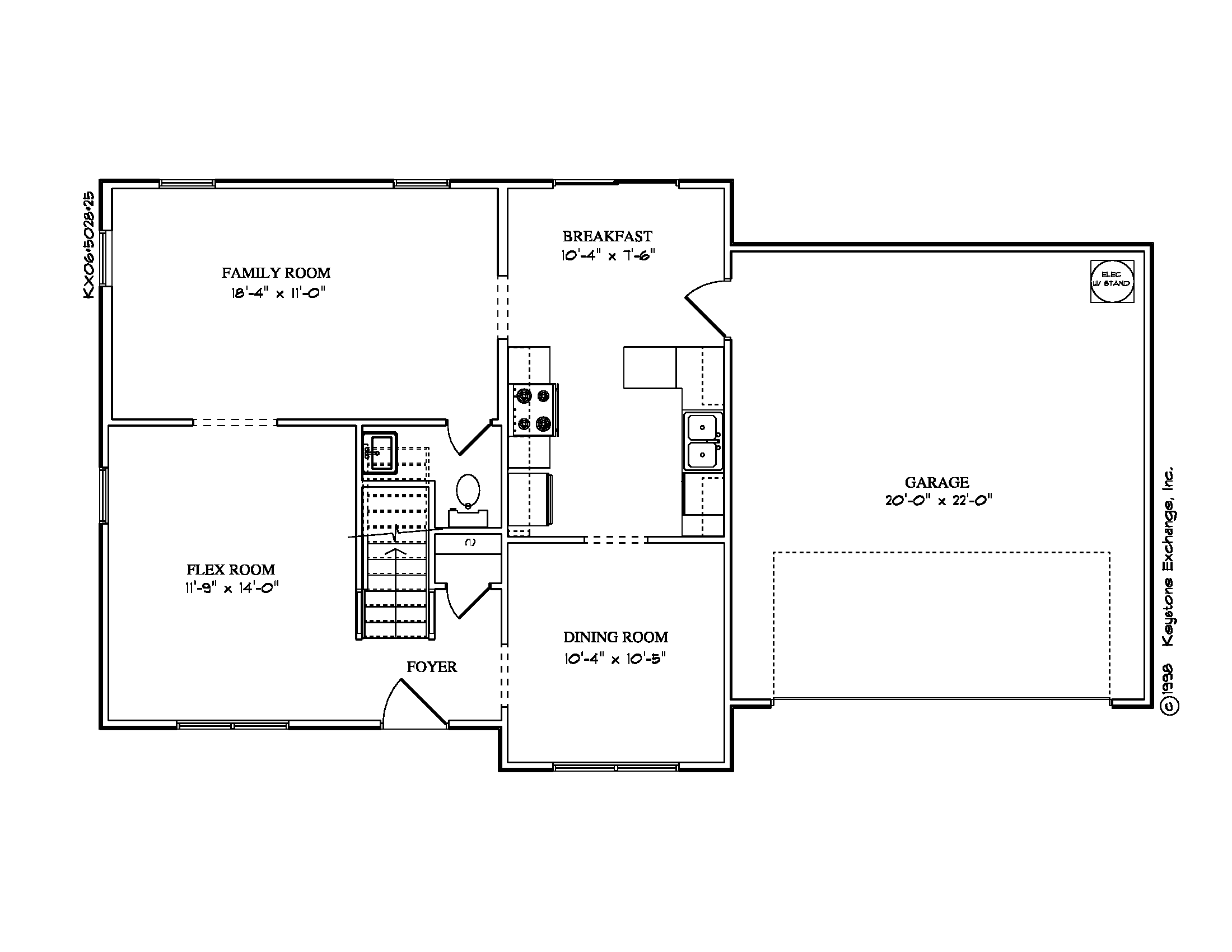
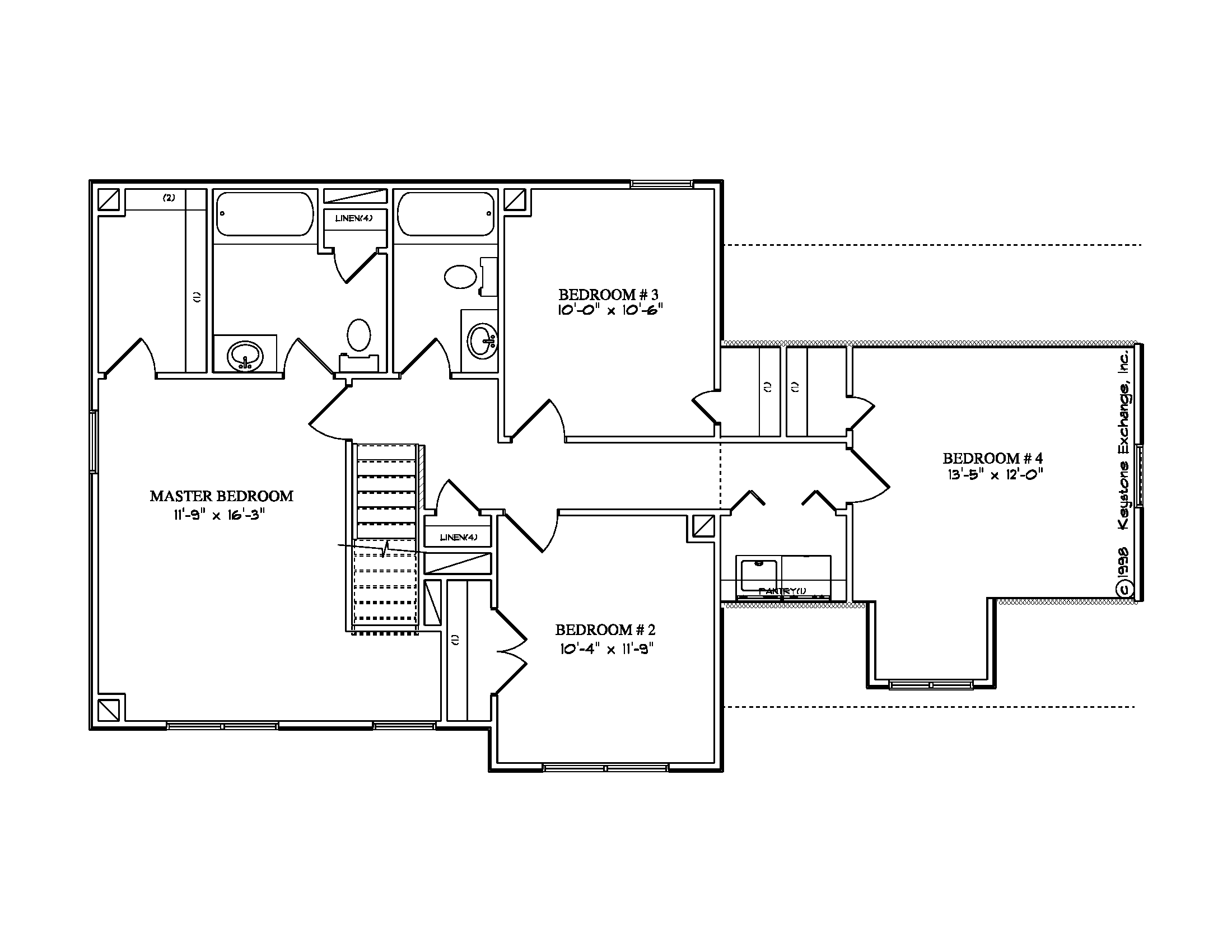
The Virginia is a well-designed two-story home offering 1,880 square feet with 4 bedrooms, 2.5 baths, and a 2-car garage. The main level features an open family room, kitchen, and breakfast area, along with a flexible front room ideal for a home office or formal space. Upstairs, the primary suite is complemented by three additional bedrooms, providing comfort and privacy. With multiple elevation options and practical upgrade choices, The Virginia delivers classic design and everyday functionality.


