Gallery
The Wellington II
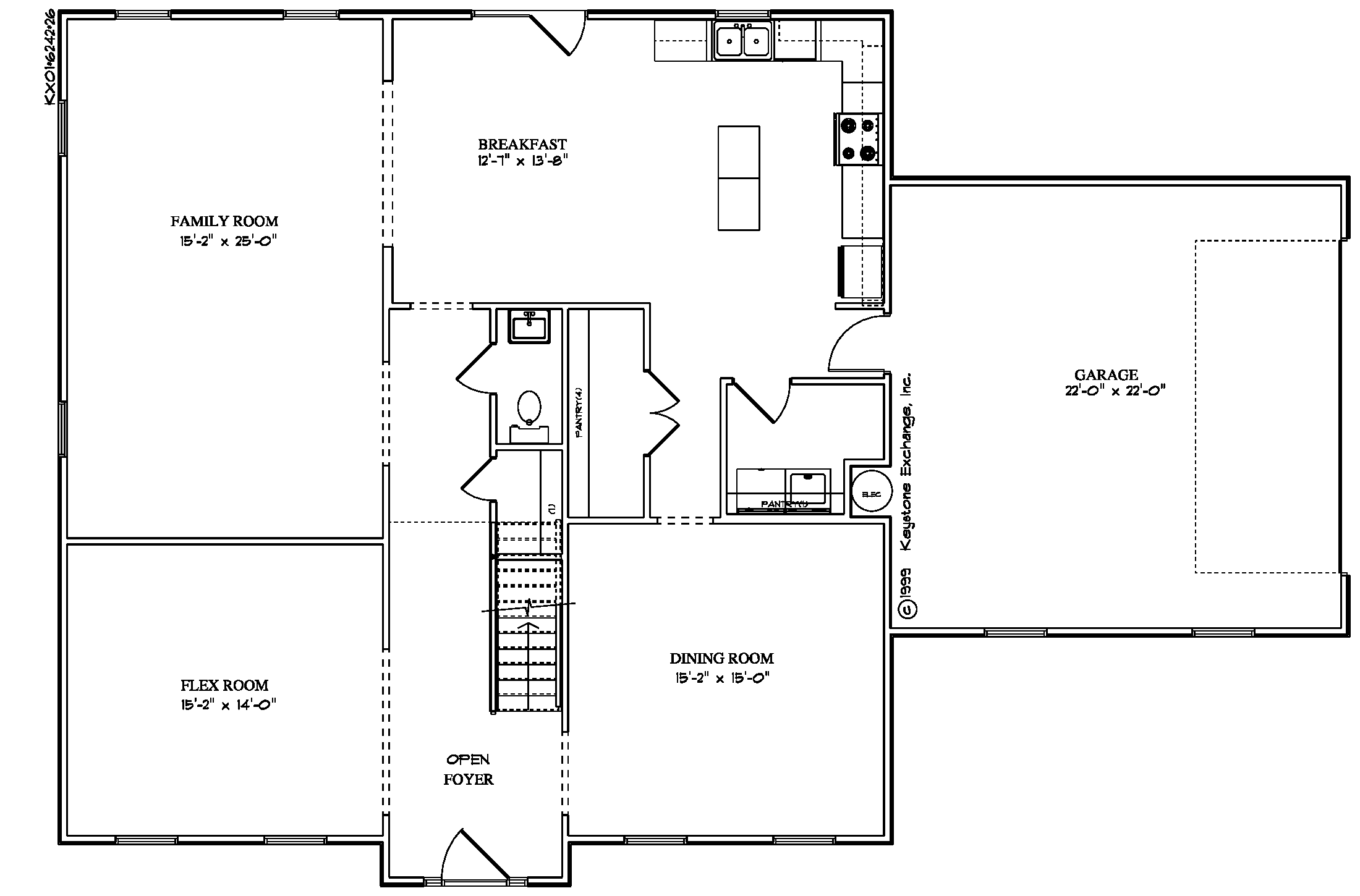
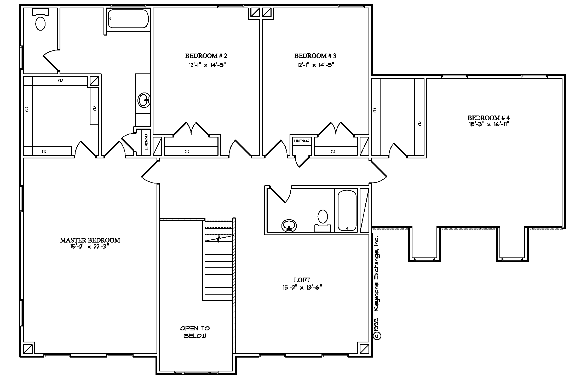
The Wellington II is a spacious and well-appointed two-story home offering 3,533 square feet with 4 bedrooms, 2.5 baths, and a 2-car garage. The main level features expansive living and entertaining areas, including an open family room, kitchen with breakfast space, and a formal dining room, along with a flexible front room ideal for an office or sitting area. Upstairs, the primary suite and additional bedrooms are complemented by a loft, providing flexibility for family living or guests. With multiple elevation options and premium upgrade features, The Wellington II delivers classic design, scale, and everyday comfort.


