Gallery
The Wellsley
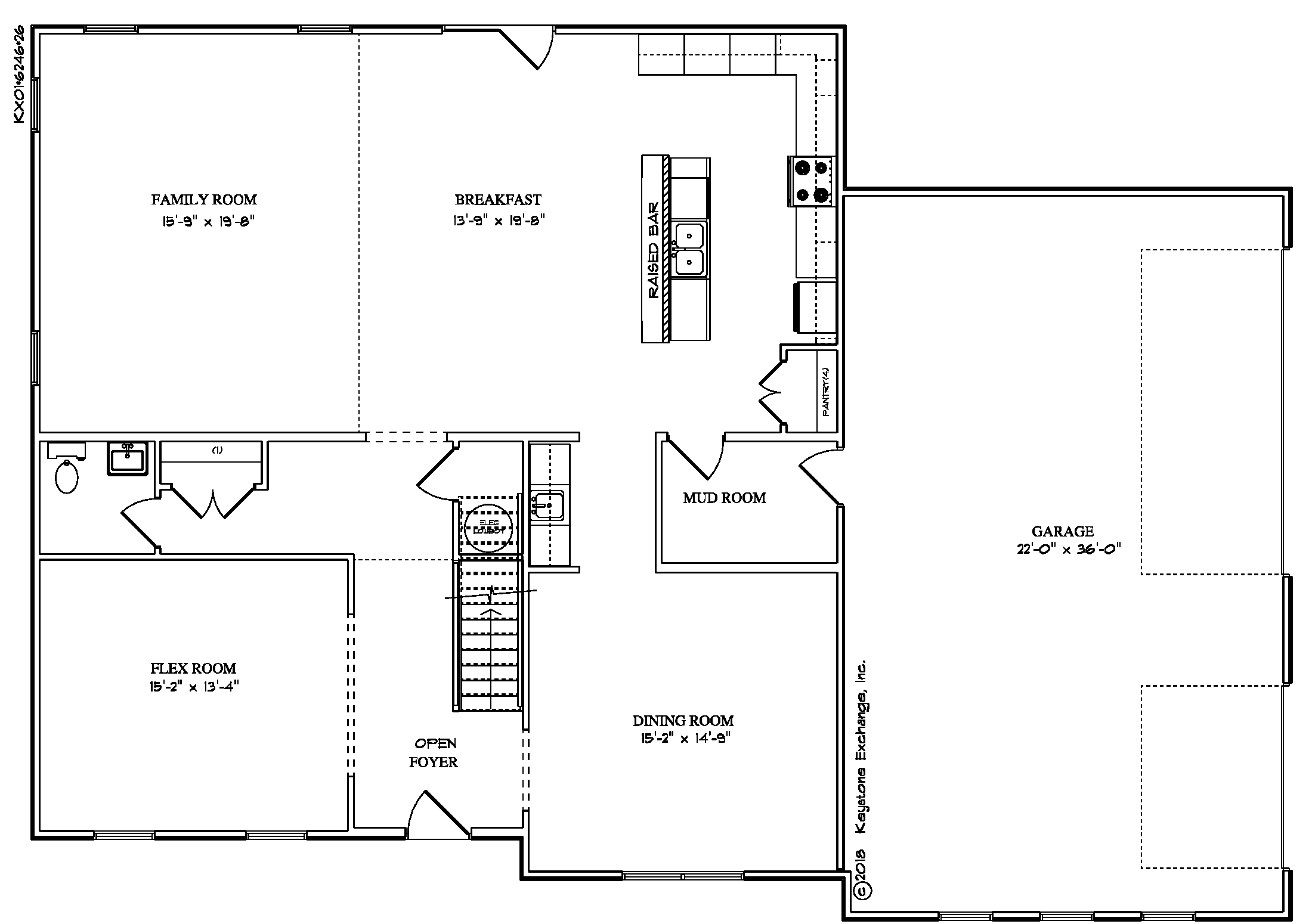
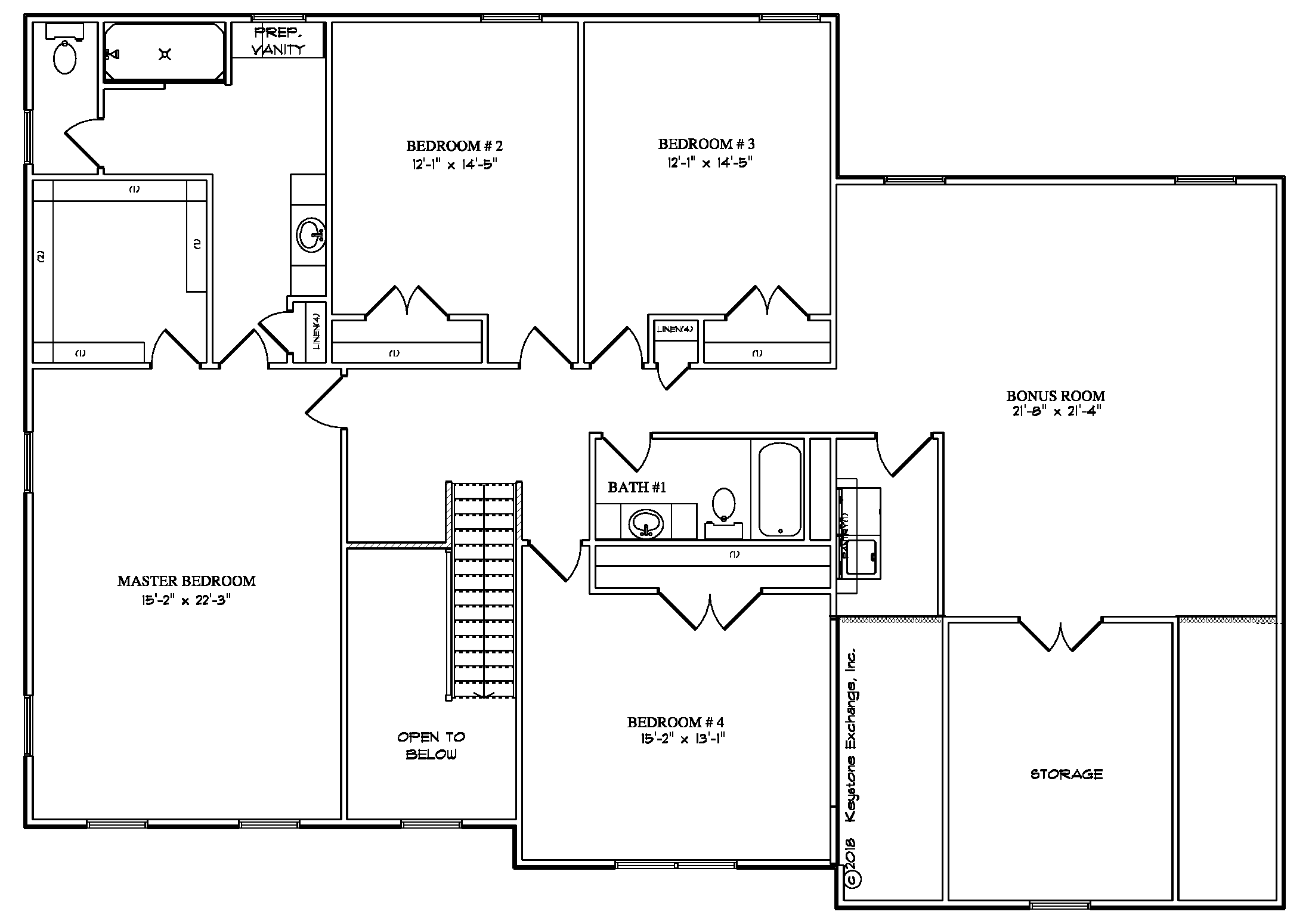
The Wellsley is a spacious two-story home offering 3,812 square feet with 4 bedrooms, 2.5 baths, and a 3-car garage. The main level features an open family room, kitchen with breakfast area, formal dining room, and a flexible front room ideal for an office or sitting space. Upstairs, the primary suite is joined by additional bedrooms and a bonus room, providing flexibility for family living or guests. With multiple elevation styles and premium upgrade options, The Wellsley combines scale, functionality, and refined design.


